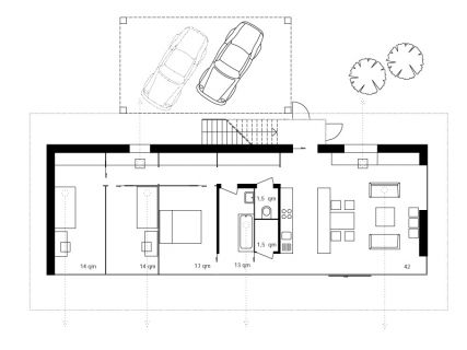
"The Bride Side of Life" ist die Weiterentwicklung unseres erfolgreichen Haus mit Ausblick zu einem Systemhaus. Es eignet sich als Anlage mit 2-8 WE zur Nachverdichtung in Einfamilienhausgebieten. Die Modellpalette (60-140m2) basiert auf den Entwurfsprinzipien des gebauten Architektenhauses: Der offene Grundriss und die flexible Raumeinteilung bieten maximale Nutzfläche bei minimaler Bruttogeschoßfläche und bedeutet Kostenersparnis bei luxuriösem Raumerlebnis. Alle Zimmer sind zum Garten orientiert, was neben bestem Schall- und Wärmeschutz zur Nordseite auch höchste Energieeffizienz durch Solarnutzung garantiert. Auf Basis des Prototyps werden Partner zur Projektentwicklung oder Liegenschaften für die Umsetzung gesucht.


