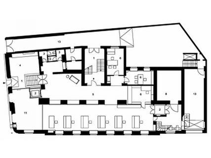
Für eine neue Filiale der Hypo-Bank Vorarlberg wurde eine Adaptierung der ehemaligen Nationalbank in Graz am Joanneumring gewählt. Während die innenräumliche Struktur weitgehend als Bankfiliale zu übernehmen war, galt der Schwerpunkt der kundenfreundlichen Öffnung der Filiale. So wurde die beste innerstädtische Lage zum Joanneumring mittels einer transparenten, rahmenlosen Glasfassade betont. Weiters wurde für die Bank mit Schwerpunkt Privat- und Investmentkunden ein komfortabler Lift im Fassadenbereich eingebaut. Die Maßnahmen wurden in kürzester Zeit unter Berücksichtigung der Altstadtschutzzone realisiert.


