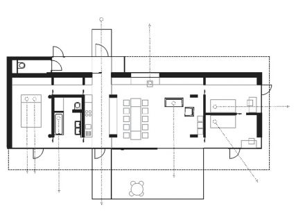
Von der Stadt aufs Land, eine Geschichte über den Traum vom eigenen Haus: Eine Jungfamilie findet über innovative Zusammenarbeit mit dem Architekten ihren Weg zum Haus mit Garten. Gemeinsam erreichen sie eine gezielte Intensivierung der Wohnnutzung am bestehenden Grundstück der Großeltern sowie die gewünschte Kostenersparnis. Ein offener Grundriss dient als Grundlage für die je nach Lebenslage flexibel adaptierbare Heimat mit Panoramablick über das Lassnitzthal. Das ‚Haus mit Ausblick‘ - Eine Geschichte über Emotion, Wert und Mehrwert von Architektur.


